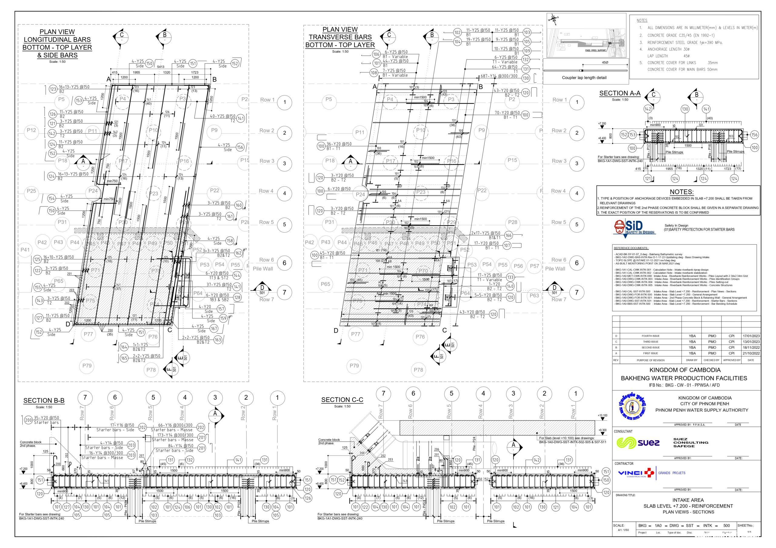
BAKHENG WATER TREATMENT PLANT – CAMBODIA
See below some Photos and drawings of the Project
*Most of our project images are zoomable. Click one time to the main image, to open it in front view and use the arrows for navigation .Click X to exit from this view. In order to zoom to a photo/drawing, click the magnifying glass icon and move your mouse to pan . If you ca not see the magnifying glass icon, the photo/drawing is not zoomable.















