EKKPT MOTORWAY RETAINING WALL RW 53R

EKKPT MOTORWAY RETAINING WALL RW 53R

EKKPT MOTORWAY RETAINING WALL RW 53R About EKKPT MOTORWAY RETAINING WALL RW 53R Project Details: Design calculations & technical reports, Structural construction/shop drawings, Design coordination See below some Photos and drawings of the Project *Most of our...
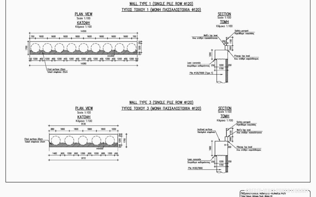
EKKPT MOTORWAY PILE WALL R558 – GREECE

EKKPT MOTORWAY PILE WALL R558 – GREECE

EKKPT MOTORWAY PILE WALL R558 – GREECE About EKKPT MOTORWAY PILE WALL R558 – GREECE Project Details: Design calculations & technical reports, Structural construction/shop drawings, Design coordination See below some Photos and drawings of the Project...
EKKPT MOTORWAY OVERPASS A806 – GREECE

EKKPT MOTORWAY OVERPASS A806 – GREECE

EKKPT MOTORWAY OVERPASS A806 – GREECE About EKKPT MOTORWAY OVERPASS A806 – GREECE Project: Details: Design calculations & technical reports, Structural construction/shop drawings, Design coordination See below some Photos and drawings of the Project...
EKKPT MOTORWAY KAMARES BRIDGE – GREECE

EKKPT MOTORWAY KAMARES BRIDGE – GREECE

EKKPT MOTORWAY KAMARES BRIDGE – GREECE About EKKPT MOTORWAY KAMARES BRIDGE – GREECE Project Details: Design calculations & technical reports, Structural construction/shop drawings, Design coordination See below some Photos and drawings of the Project...